三款现代农村一层平房图片,各有特色,随便盖一栋村里人都羡慕
三款现代农村一层平房图片,各有特色,随便盖一栋村里人都羡慕
现在在农村二三层的别墅非常常见,反而是平房,却越来越少了。其实如果家中人口不多的话,或者只是建一个养老房,根本没有必要去盖二三层的别墅,随便花个十来万盖一个彭芳是最好的,今天小编就给大家带来了三款现代农村一层平房图片,如果有你喜欢的,可千万要抓紧时间收藏图纸盖房子啦。
户型一:新款现代一层别墅设计效果图,农村自建房平房推荐户型
占地面积:13m*9.3m,129.36平方米;
建筑层高:一层;
建筑高度:6.193米(含屋顶);
设计功能:
一层户型:客厅、厨房、餐厅、卧室X3、卧室(带卫生间);
图纸介绍:本户型占地130平米左右,外观时尚漂亮,户型经典实用,欧式风格非常经典耐看;室内有四室两厅一厨两卫,客厅主卧有飘窗,户型通透,满足大多数农村生活居住需求。


现代一层别墅设计图展示
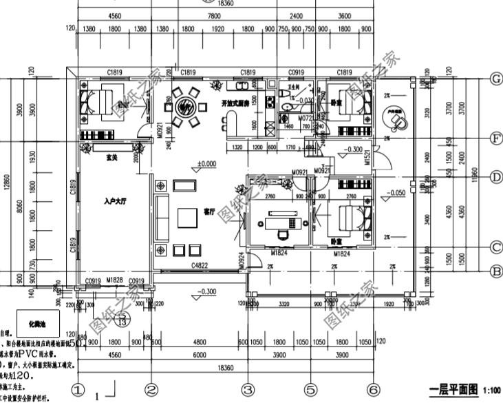
户型二:现代田园风格一层别墅设计图,带阁楼
占地面积:18.36m*12.86m,220平方米左右;
建筑层高:一层半;
建筑高度:9.1米(含屋顶);
设计功能:
一层户型:入户大厅、玄关、客厅、餐厅、厨房、卧室x3、书房、卫生间;
阁楼户型:卧室、卫生间;
图纸介绍:本户型带阁楼设计,外观时尚,沉稳大气;室内布局也很实用,造价经济,施工简单,室内空间非常大注重生活品质,居住其中会有非常舒适的居家体验。




田园风格一层别墅效果图展示
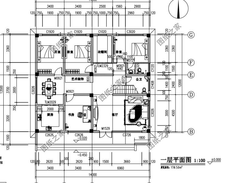
户型三:现代一层别墅房屋设计图,主体造价15万左右
占地面积:14.0m*13.5m,建筑面积180平左右;
建筑层高:一层;
建筑高度:6.50米(含屋顶);
设计功能:
一层户型设计:客厅、餐厅、厨房、主卧(带卫生间)、卧室x2、书房、衣帽间、卫生间;
图纸介绍:本户型含外观图片,内部布局十分合理,空间利用率高,采光极佳;外观看上去非常现代,时尚感很强。




现代一层别墅外观图展示
以上就是小编这次为大家带来的别墅设计图,喜欢哪一款下方留言告诉我。
-
- 新山火猛于虎:加州近两万民众逃离灾难现场!
-
2025-11-29 07:39:46
-
- 天津十大知名男相声演员第10名,第一名居然是这位泰斗
-
2025-11-29 07:37:30
-
- 上午免职,下午被捕!时隔 9 年,重看黄宏的行径令人钦佩!
-
2025-11-29 07:35:14
-
- 其实霍金在33年前已经去世,而后来的霍金只是傀儡,阴谋论?
-
2025-11-29 07:32:58
-
- 黄海波因嫖娼被抓,这5年来到底经历了什么
-
2025-11-29 07:30:43
-
- 蒿俊闵在足球圈里为什么人称“三哥”?
-
2025-11-29 07:28:27
-
- 汉朝—中期权臣:霍光
-
2025-11-29 07:26:11
-
- 冬至由来:跨越千年的文化传承
-
2025-11-29 07:23:56
-
- 1666年,英国伦敦差点化为灰烬,大火造成了约1000万英镑的损失
-
2025-11-29 07:21:40
-
- “气功大师”严新:意念拦截原子弹,信徒800万,与美国总统合影
-
2025-11-29 07:19:24
-
- 事关湘赣黔三省的大事,又一条高铁新通道开始规划
-
2025-11-28 01:16:54
-
- 利润吓人的10个冷门行业
-
2025-11-28 01:14:38
-
- 超人气耽美漫画排行,灵契勉强上榜,第一名不追会后悔的
-
2025-11-28 01:12:22
-
- 青岛桥头堡国际商务区解析
-
2025-11-28 01:10:06
-
- 拇指小国摩纳哥,为何可以存续数百年而没被法国兼并?
-
2025-11-28 01:07:49
-
- 二十四式简化太极拳的动作名称及手脚眼身法步的配合
-
2025-11-28 01:05:34
-
- 帮考网被曝向不具备资格的考生推荐课程 频现问题遭消费者投诉
-
2025-11-28 01:03:18
-
- 100种多肉图鉴,比花还美,你认识几种?
-
2025-11-28 01:01:02
-
- 36岁已婚女人的自述:谁会懂我出轨后的煎熬
-
2025-11-28 00:58:46
-
- 《抑郁症测试题》30道题测你是否抑郁?(医院专用版)赶快试试吧
-
2025-11-28 00:56:29



贵州两落马女厅官出镜忏悔:一人想念父母做的菜;一人带衣服投案
山西省晋城市公交线路一览表
河北省泊头市概况
我国首位亿万富翁牟其中:3度入狱,小姨子为他守了铁窗16年
宣化炮院,曾是炮兵最高学府 延安精神传承至宣化,至今已有65年
山东徐氏字辈整理汇编
诛仙番外登顶起点热搜第一,红鸾剑阵恐怖如斯,两女主粉态度不同
马化腾谈到潮汕老家,他是这样说的……
石家庄金伯帆酒店被27军长打砸事件经过和真相曝光